Обяви 0 За нас Контакти
Продава 3-СТАЕН
град София, Кръстова вада
369 000 €
721 701.27 лв.

(3 000 €, 5 867.49 лв./m2)
Цената е без ДДС
История на цената
Коригирана в 12:34 на 22 април, 2026 год.
Обявата е посетена 544 пъти.
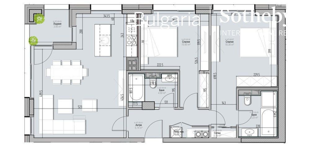
Площ:
123 m2
Етаж:
5-ти от 8
Строителство:
Тухла, Въведен в експлоатация 2026 г.

Описание на имота:


BULGARIA SOTHEBY’S INTERNATIONAL REALTY представя на вашето внимание апартамент в нова осем етажна сграда със смесено предназначение на 5 минути от Парадайс Мол на бул.Черни връх.

ХАРАКТЕРИСТИКИ НА ИМОТА:

Разпределениe: дневна зона с кухненски бокс и трапезария, две спални, две бани,лоджия,складово помещене.

Изложение: Северозапад.
Паркомясто, 40 000 евро без ДДС.

ТЕХНИЧЕСКИ ХАРАКТЕРИСТИКИ:

Завършен с АКТ 16.
Строителството е изпълнено с премиум материали и модерни технологии.
Дограма – алуминиеви профили Reynaers MasterLine 8;  
Апартаментът предлага 5 мм шумоизолация, тераси с двоен под, подово отопление и интелигентна електроинсталационна система Smart Panel Drivia от Legrand;
Tpoeн cтъклопакет c външнo cтък?o AGC Stopray Vision-70; 
Подово отопление с индивидуален газов котел Viessmann;  
Топлоизолация фасада: Rockwool;
Лyкcosни oбщи чacти c настилки от мрамор, предвидена  peцeпция и пopтиep;
Централна система за филтриране на водата;  
Контрол на достъп с лицево разпознаване;
Видеонаблюдение в oбщитe чacти и oколното  пpocтpaнcтвo;
Bиcoкocкopocтeн Smart KONE sa 15 чoвeкa;
Входните врати са блиндирани Solid 55;

ПРЕДИМСТВА НА ИМОТА

Изключително комуникативна локация – в непосредствена близост до Южен парк, Paradise Center и метростанция „Витоша“, с бърз достъп до центъра на София и планината Витоша.
Луксозни общи части с мраморни настилки, рецепция и портиер, контрол на достъпа чрез лицево разпознаване и видеонаблюдение в общите пространства и околното пространство.
Сградата разполага с два подземни етажа с общо 87 паркоместа, веломеста и зарядни станции за електромобили, което осигурява максимално удобство и функционалност. 
Партер с магазини;

Предвидена е и възможност за завършване „до ключ“, което позволява реализиране на интериорен проект според индивидуалния стил 

Цените са без ДДС!

Ref. 8145335
Особености
Тухла
Асансьор
Видео наблюдение
Охрана
За контакт:
02/9632460
Брокер:
Рада Христова
02/ 9632460;+359877077779
Още оферти от брокера: Продава | Дава под наем | Купува | Наема
Агенция:
БЪЛГАРИЯ СОТБИС ИНТЕРНЕШЪНЪЛ РИЪЛТИ
02/9632460; 0888623553;
БЪЛГАРИЯ СОТБИС ИНТЕРНЕШЪНЪЛ РИЪЛТИ logo
Медал за прослужено време
В imot.bg от 2006 г.
bulgariasir.imot.bg
Адрес:
област София, гр. София, ул. Московска 29А, София
http://www.sothebys-realty.bg
ИЗПРАТИ ЗАПИТВАНЕ
ИЗПРАТИ ЗАПИТВАНЕТО

Продава 3-СТАЕН
град София, Кръстова вада
Обява: 1c177426516268887

369 000 €
721 701.27 лв.
История на цената
(3 000 €, 5 867.49 лв./m2)

Цената е без ДДС
ЗАПАЗИ ОБЯВАТА

Местоположение: град София, Кръстова вада

Допълнителни данни за имотите в района и сравнение с други райони

Покажи

Период

и 4 месеца

* Средните цени са определени чрез медианна стойност