Обяви За нас Контакти
Продава КЪЩА
град София, Център
При запитване
История на цената
Коригирана в 18:04 на 11 декември, 2025 год.
Обявата е посетена 5060 пъти.
Площ:
993 m2
Двор:
1000 m2
Строителство:
Тухла,

Описание на имота:


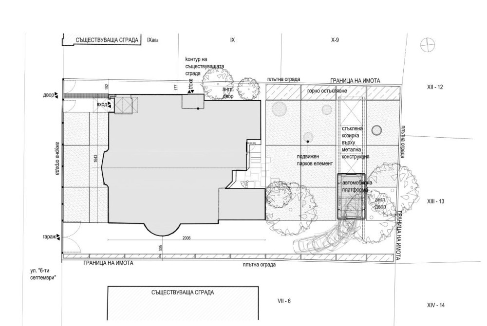
BULGARIA SOTHEBY’S INTERNATIONAL REALTY представя на вашето внимание една от емблематичните ни сгради, паметник на културата, проектирана през 1912 г. от известния български архитект Кирил (Киро) Маричков. Представлява архитектурно-строителна недвижима културна ценност с категория „Местно значение“. Оригиналното предназначение е еднофамилна жилищна сграда.

Имотът представлява 993 кв.м. парцел с 1000 кв.м. застроена площ и се състои от сутерен, два просторни и високи жилищни етажа и един мансарден етаж.

Инвестиционните ни намерения са за реконструкция и реставрация на сградата съобразно съвременните изисквания за функционалност на представителна жилищна резиденция в центъра на града. Одобреният инвестиционен проект включва разполагане на сутерена в пълните граници на имота, а към дъното на имота от изток се предвижда остъклена автомобилна платформа.

Съществен елемент от проекта е запазването на автентичния вид  на двете емблематични фасадни стени, западна и южна, възстановявайки оригиналната геометрия на мансардния покрив, както е проектирана от арх. Кирил (Киро) Маричков.

Ref. 6726
Особености
Тухла
За контакт:
02/9632460
Брокер:
Силвия Дончева
02/ 9632460;+359877077779
Още оферти от брокера: Продава | Дава под наем | Купува | Наема
Агенция:
БЪЛГАРИЯ СОТБИС ИНТЕРНЕШЪНЪЛ РИЪЛТИ
02/9632460; 0888623553;
БЪЛГАРИЯ СОТБИС ИНТЕРНЕШЪНЪЛ РИЪЛТИ logo
Медал за прослужено време
В imot.bg от 2006 г.
bulgariasir.imot.bg
Адрес:
област София, гр. София, ул. Московска 29А, София
http://www.sothebys-realty.bg
ИЗПРАТИ ЗАПИТВАНЕ
ИЗПРАТИ ЗАПИТВАНЕТО

Продава КЪЩА
град София, Център
Обява: 1j172042740505271

При запитване
История на цената

ЗАПАЗИ ОБЯВАТА

Местоположение: град София, Център

Допълнителни данни за имотите в района и сравнение с други райони

Покажи

Период

* Средните цени са определени чрез медианна стойност