Обяви 0 За нас Контакти
Продава КЪЩА
град София, с. Чепинци
350 000 €
684 540.50 лв.

(2 000 €, 3 911.66 лв./m2)
Цената е с включено ДДС
История на цената
Коригирана в 11:36 на 24 април, 2026 год.
Обявата е посетена 4273 пъти.
Площ:
175 m2
Двор:
79 m2
Строителство:
Тухла, 2027 г.

Описание на имота:


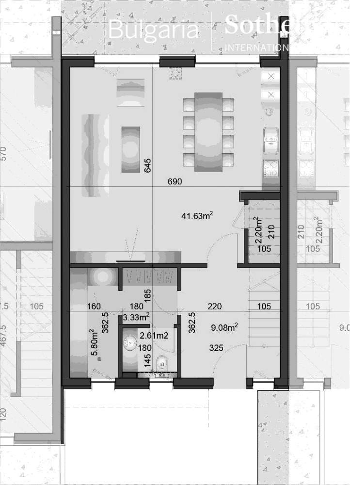
BULGARIA SOTHEBY’S INTERNATIONAL REALTY има удоволствието да представи на Вашето внимание жилище тип В в затворен бутиков комплекс от къщи в с.Чепинци. Къща със застроена площ от 175.10 кв.м и самостоятелен двор от 79 кв.м, предоставен от строителя. Разположена на два етажа с функционално разпределение, съобразено с нуждите на съвременното семейство.

ХАРАКТЕРИСТИКА НА ИМОТА

Жилищна група В - втори етап

ЗП Първи етаж: 81,94 кв.м.

ЗП Втори етаж: 93,16 кв.м.

РЗП: 175,10 кв.м.

Паркинг места към еднофамилното жилище: П14 и П 15 всяко по 12,50 кв.м.

Двор: 78,96 кв.м.

Разпределение: 

Първо ниво: хол с трапезария и кухня, баня с тоалетна, мокро помещение.

Второ ниво: три спални, две бани с тоалетна.

ТЕХНИЧЕСКИ ХАРАКТЕРИСТИКИ НА ИМОТА

Просторни стаи с високи тавани;
Завършена по БДС;
Висок клас топлоизолация;
Облицовка от декоративен камък;
Ще бъде въведена в експлоатация 06.2027г.

ЛОКАЦИЯ НА ИМОТА

Съвременен жилищен комплекс от 6 къщи в зелена зона на с. Чепинци само на 14 км от центъра на София. Идеален за тези, които търсят спокойствие сред природата, без да се лишават от удобствата на града. Международно летище София (SOF) е на 30 км, с достъп за 30 мин. по нов асфалтов път. Селото е с отлична пътна свързаност и бърз достъп до столичната инфраструктура.

Цена с включено ДДС: 295 000 евро.

Схема на плащане:
Предварителен договор: 120 000 евро с ДДС.
АКТ 14: 87 500 евро с ДДС.
Удостоверение за ползване: 87 500 евро с ДДС.

Реф. 7658

 
Особености
Тухла
В затворен комплекс
Видео наблюдение
Контрол на достъпа
С паркинг
За контакт:
02/9632460
Брокер:
Мирослава Маринова
02/ 9632460;
Още оферти от брокера: Продава | Дава под наем | Купува | Наема
Агенция:
БЪЛГАРИЯ СОТБИС ИНТЕРНЕШЪНЪЛ РИЪЛТИ
02/9632460; 0888623553;
БЪЛГАРИЯ СОТБИС ИНТЕРНЕШЪНЪЛ РИЪЛТИ logo
Медал за прослужено време
В imot.bg от 2006 г.
bulgariasir.imot.bg
Адрес:
област София, гр. София, ул. Московска 29А, София
http://www.sothebys-realty.bg
ИЗПРАТИ ЗАПИТВАНЕ
ИЗПРАТИ ЗАПИТВАНЕТО

Продава КЪЩА
град София, с. Чепинци
Обява: 1j175551684753616

350 000 €
684 540.50 лв.
История на цената
(2 000 €, 3 911.66 лв./m2)

Цената е с включено ДДС
ЗАПАЗИ ОБЯВАТА

Местоположение: град София, с. Чепинци

Допълнителни данни за имотите в района и сравнение с други райони

Покажи

Период

и 5 месеца

* Средните цени са определени чрез медианна стойност