Обяви 0 За нас Контакти
Продава КЪЩА
град София, с. Бистрица
880 000 €
1 721 130.40 лв.

(2 667 €, 5 216.20 лв./m2)
Не се начислява ДДС
История на цената
Коригирана в 12:06 на 4 май, 2026 год.
Обявата е посетена 1610 пъти.
Площ:
330 m2
Двор:
1048 m2
Строителство:
Тухла, Ще бъде въведен в експлоатация 2027 г.

Описание на имота:


BULGARIA SOTHEBY’S INTERNATIONAL REALTY има удоволствието да представи на Вашето внимание самостоятелна двуетажна къща  за продажба в Бистрица. Къщата е със степен на завършеност на груб строеж, налични Акт 14 и чл. 181. 

ХАРАКТЕРИСТИКИ НА ИМОТА

РЗП:300 кв.м.

Парцел:1048 кв.м.

Първи етаж: входно антре; хол с трапезария и кухненска част с директен излаз към градината; самостоятелна спалня; санитарен възел за етажа.

Втори етаж: антре; две самостоятелни спални; санитарен възел; спалня със собствена гардеробна и санитарен възел.

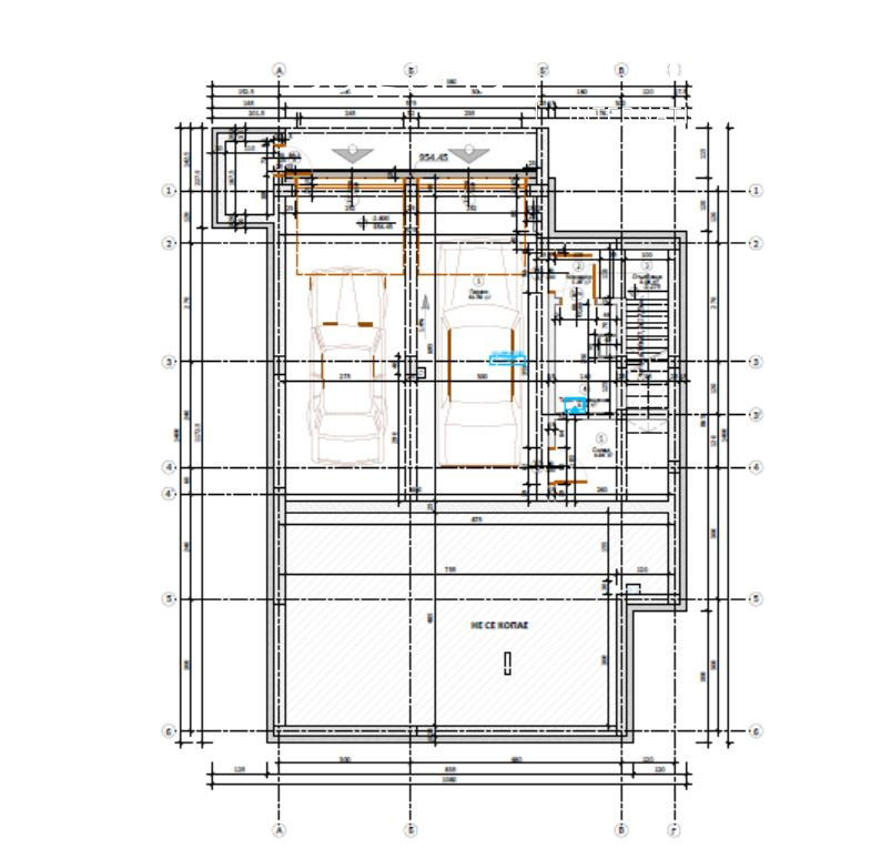
Сутерен: паркоместа за до 4 автомобила, избено помещение.

ТЕХНИЧЕСКИ ХАРАКТЕРИСТИКИ

1.Преди акт 16 – 775 000 ЕВРО

Ел и ВИК инсталации;
Изцяло окабеляване за СОТ и видеонаблюдение;
Вътрешна мазилка;
Външна Топлоизолация;
Пречиствателна станция модел One2Clean 5, производство на фирма GRAF – Германия.;
Резервоар Carat S 3750 л + Система за дъждовна вода Garden Comfort, производство на фирма GRAF – Германия. Свързан е с кладенец с постоянен воден капацитет;
Подравнен  и изчистен двор;
Завършена и отводнена рампа (без настилка) към гараж
Завършена рампа (без настилка) към централен ход
Подготвени за настилка пътеки около къщата.

2.След Акт 16 – 880 000 ЕВРО

Завършени части надграждащи по-горните;
Вътрешна завършеност на мазилка и замазка по БДС;
Поставена инсталация за подово отопление без термопомпа;
ВИК на тапи;
Завършена фасада по проект с каменни и дървени облицовки;
Външни рамки по дограмата с подготовка за външни ламелни щори;
Гаражни автоматични врати HORMAN;
Входна врата;
Завършени с подова настилка на рампи към гараж, централен вход, както и пътеки около къщата;
Ламелни ограда , гаражни врати и входна врата по улицата;
Метални огради с трите съседни имота.

3.Полузавършен вид след Акт 16 – 990 000 ЕВРО

Завършени части надграждащи по-горните;
Фина шпакловка вътрешни стени;
Интериорни врати;
Подова настилка първи етап от гранитогрес плочи 120x120 см. PORCELANOSA;
Подова настилка Linkfloor – PORCELANOSA;
Завършени бани с първокачествени материали и санитария на PORCELANOSA (изпращам ви проекти по WeTransfer);
Подова замазка в гаражите;
Поставени Ел ключове и контакти;
Поставени датчици и камери за СОТ;
Поставена кухня, като синтерования камък за плотове и вратички ще са пожелания на купувача;
Вътрешни дървени рамки по прозорците в хола и трапезарията;
Поставени външни автоматизирани ламелни щори;
Поставено ?
Особености
Тухла
С паркинг
За контакт:
02/9632460
Брокер:
Климент Чорбаджиев
02/ 9632460;+359877077779
Още оферти от брокера: Продава | Дава под наем | Купува | Наема
Агенция:
БЪЛГАРИЯ СОТБИС ИНТЕРНЕШЪНЪЛ РИЪЛТИ
02/9632460; 0888623553;
БЪЛГАРИЯ СОТБИС ИНТЕРНЕШЪНЪЛ РИЪЛТИ logo
Медал за прослужено време
В imot.bg от 2006 г.
bulgariasir.imot.bg
Адрес:
област София, гр. София, ул. Московска 29А, София
http://www.sothebys-realty.bg
ИЗПРАТИ ЗАПИТВАНЕ
ИЗПРАТИ ЗАПИТВАНЕТО

Продава КЪЩА
град София, с. Бистрица
Обява: 1j176068998883859

880 000 €
1 721 130.40 лв.
История на цената
(2 667 €, 5 216.20 лв./m2)

Не се начислява ДДС
ЗАПАЗИ ОБЯВАТА

Местоположение: град София, с. Бистрица

Допълнителни данни за имотите в района и сравнение с други райони

Покажи

Период

и 5 месеца

* Средните цени са определени чрез медианна стойност